Etusivu Myytävät loma-asunnot 194.5 m² Svingipolku 19, 99130 Kittilä Korkeatasoinen lomahuvila – Oikotie 24013824

1 285 000 € 194,5 m²

Svingipolku 19, Levi, Kittilä Korkeatasoinen lomahuvila

Sofia LKV Oy Sofia Lehtonen
Sofia LKV Oy Sofia Lehtonen

040 7098 700

Velaton hinta
1 285 000 €
Asuinpinta-ala
194,5 m²
Huoneita
6
Kerros
1
Rakennuksen tyyppi
Mökki tai huvila
Kaupunginosa
Levi
Kaupunki
Kittilä

Upea uudenveroinen lomahuvila Ounasjoen tuntumassa Svingipolulla. Päärakennuksen lisäksi lämmin autotalli sekä autokatos. Pihalla myös moderni tulistelukota.

Huvilassa mahtuu lomailla isommallakin porukalla, sopii hyvin myös vakituisempaan asumiseen. Alakerrassa olohuone-keittiö, kaksi makuuhuonetta, kodinhoitohuone, vaatehuone, erillinen wc sekä sauna-kylpyhuone-wc -tila. Kodinhoitohuoneesta käynti suoraan ulos. Yläkerrassa kolme makuuhuonetta, kylpyhuone sekä varastotila. Isot ja avarat ikkunat tuovat kauniin luonnon sisälle. Reilu terassi kiertää talon puolelta toiselle. Talon päädyssä terassi on avoin, sivulla lasitettu suojaisaksi. Päätyterassilla ulkoporeallas rentouttaviin hetkiin.

Lämmitysmuotona taloudellinen maalämpö. Piha asfaltoitu kokonaisuudessan, kunttaa käytetty maisemoinnissa.

Myydään laadukkaasti kalustettuna. Vapautuminen nopeasti tarpeen mukaan.

Skibussipysäkille matkaa noin 300m, lähin laskettelurinne, hiihtoladut, golf reilun kilometrin päässä.

Perustiedot

Sijainti
Svingipolku 19, 99130 Kittilä
Kaupunginosa
Levi
Kohdenumero
21923325
Kerros
1 / 2
Asuinpinta-ala
194,5 m²
Tontin pinta-ala
1 758 m²
Kokonaispinta-ala
289,5 m²
Pinta-alojen lisätiedot
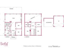
1.kerros 139,5m2, 2.kerros 55m2, yhteensä 194,5m2. Autokatos 40m2, autotalli 48,3/55m2.
Huoneiston kokoonpano
Korkeatasoinen lomahuvila
Huoneita
6
Kunto
Hyvä
Lisätietoa vapautumisesta
sopimuksen mukaan
Keittiön varusteet
Liesi: integroitu, induktio, erillisuuni. Työtasot: laminaatti. Kylmäsäilytys: jääkaappi/pakastin. Varustus: liesituuletin, mikroaaltouuni, astianpesukone.
Kylpyhuoneen varusteet
Varustus: suihkuseinä, wc-istuin. Varustus: suihku, suihkuseinä.
Asunnossa sauna
Kyllä
Saunan lisätiedot
sähkökiuas
Asumistyyppi
Omistus
Lisätiedot
Sähköliittymä. Muuta kauppaan kuuluvaa: Myydään kalustettuna irtaimistoineen. Kauppaan ei kuulu: Taulut. Niistä voi tarjota erikseen.
Kohde on
Kiinteistö
Kiinteistötunnus
261-409-38-335

Hinta

Velaton hinta
1 285 000 €
Myyntihinta
1 285 000 €
Neliöhinta
6 606,68 € / m²
Kiinnitykset
2 400 000 €

Asuinkustannukset

Muut kustannukset
Muut maksut: Sähkönkulutus kWh/v on vielä arvio.
Kiinteistövero
1709,10 €/v

Talon ja tontin tiedot

Uudiskohde
Ei
Tilan nimi
1109/K1109T1
Rakennuksen tyyppi
Kerrostalo
Kerroksia
2
Hissi
Ei
Rakennusmateriaali
hirsi
Kattomateriaali
palahuopa
Kattotyyppi
harjakatto
Energialuokka
Kohteelle ei lain mukaan tarvita energiatodistusta.
Tontin koko
1 758 m²
Tontin omistus
Oma
Kaavoitustiedot
RA loma-asuntojen korttelialue
Kaavatilanne
Asemakaava
Rakennusoikeus
250 m2.
Lisätietoa rakennusoikeudesta
250+40, rakennusoikeus on käytetty

Tilat ja materiaalit

Pintamateriaalit
Lattia: Keittiössä: laatta. Pesutiloissa: laatta. Erillisessä WC:ssä: laatta. Olohuoneessa: laatta. Makuuhuoneessa: laminaatti. Saunassa: laatta. Kodinhoitohuoneessa: laatta. Seinät: Keittiössä: puu. Pesutiloissa: kaakeli. Erillisessä WC:ssä: kaakeli. Olohuoneessa: puu. Makuuhuoneessa: puu. Saunassa: puu. Kodinhoitohuoneessa: puu.
Muut materiaalit
lamellihirsi

Uusimmat artikkelit

Katso kaikki ajankohtaiset