Etusivu Myytävät kohteet 58 m² Kustaa Hemmintie 1 A10, 31300 Tammela Oloh, keittiö, makuuh, kylpyh, vaateh ja eteinen + parveke. – Oikotie 23887697

58 000 € 58 m²

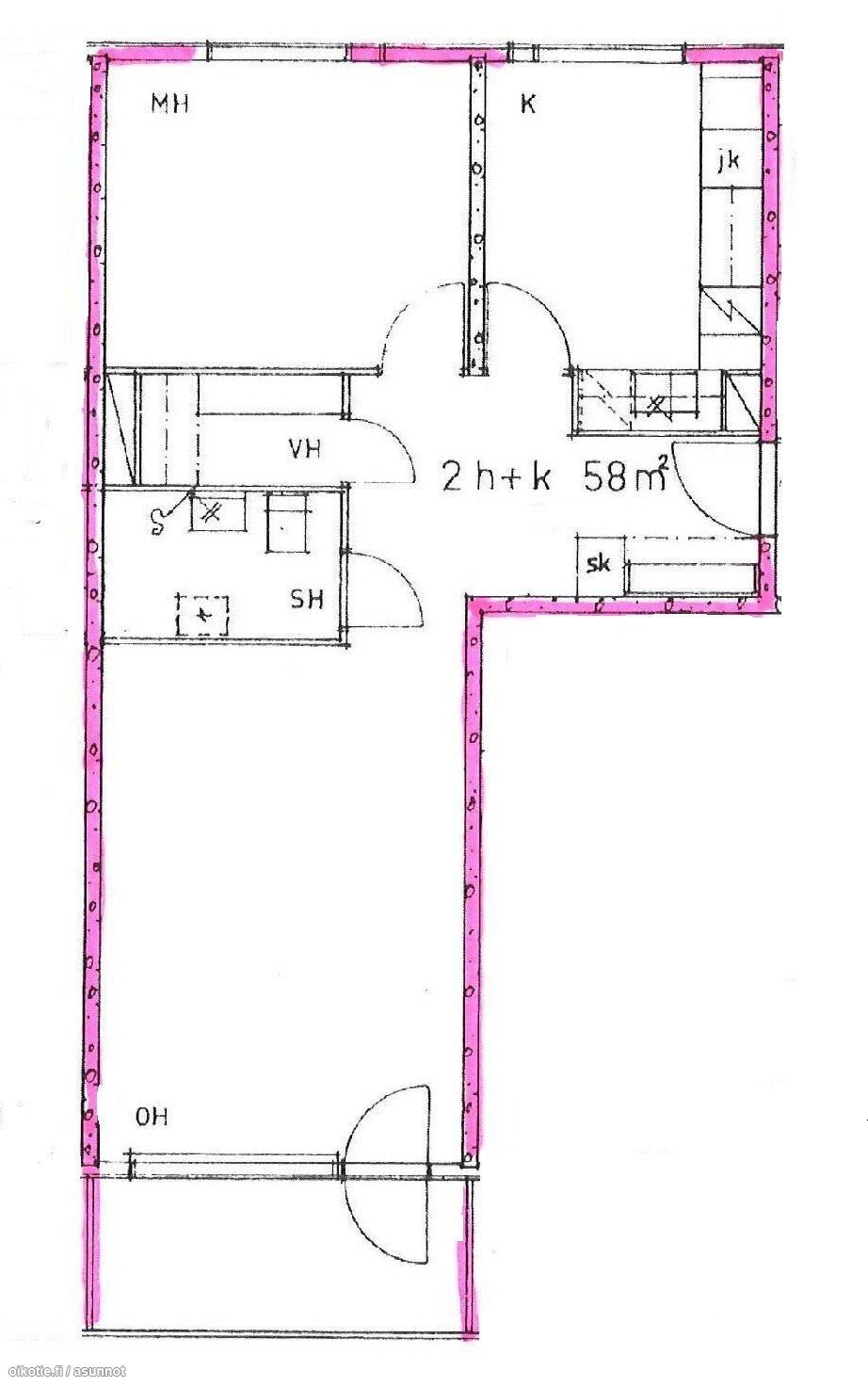
Kustaa Hemmintie 1 A10, Keskusta, Tammela Oloh, keittiö, makuuh, kylpyh, vaateh ja eteinen + parveke.

Jani Hirsimäki
Jani Hirsimäki

+358 40 773 3430

Velaton hinta
58 000 €
Hoitovastike
263,90 € / kk
Asuinpinta-ala
58 m²
Huoneita
2
Kerros
2
Rakennusvuosi
1978
Rakennuksen tyyppi
Kerrostalo
Kaupunginosa
Keskusta
Kaupunki
Tammela

Myynnissä toisen kerroksen erittäin valoisa kaksio mahtavilla maisemilla maalämpötalossa, jonne on lisäasennettu hissi. Etelän suuntaiselta parvekkeelta avautuu huikea näkymä Pyhäjärvelle. Asunto on remontoitu kauttaaltaan 2010–2011 ja sen jälkeen näyttää siltä, ettei siellä olisi asuttukaan. Asunnossa olohuone, tilava makuuhuone, keittiö, kylpyhuone, vaatehuone ja avara eteinen, 58 m² + parveke. Tammelan palvelut aivan käden ulottuvilla, mutta kuitenkin ollaan moporingin ulkopuolella. Kunnan uimaranta on suoraa edessä, matkaa 300–400 metriä, kirkolle ja kaupoille 500 metriä. Muutenkin pitää muistuttaa Tammelan hyvistä harrastusmahdollisuuksista, järvistä ja upeasta luonnosta. Tässä yksi Tammelan parhaista kerrostaloista, tervetuloa asumaan.

Perustiedot

Sijainti
Kustaa Hemmintie 1 A10, 31300 Tammela
Kaupunginosa
Keskusta
Kohdenumero
80466834
Kerros
2 / 3
Asuinpinta-ala
58 m²
Tontin pinta-ala
2 920 m²
Kokonaispinta-ala
58 m²
Pinta-alojen lisätiedot
Pinta-alan peruste: Ei tarkistusmitattu. Pinta-alat saattavat tämän ikäisissä kohteissa (yhtiö rekisteröity ennen 01.01.1992) poiketa olennaisestikin asuinrakennusten nykyisten mittaustapojen ja standardien (SFS 5139) mukaan laskettavasta asuintilojen pinta-alasta. Pinta-ala voi siis olla edellä mainittua pienempi tai suurempi. Olohuone, keittiö, makuuhuone, kylpyhuone, vaatehuone ja eteinen, 58 m² + parveke.
Huoneiston kokoonpano
Oloh, keittiö, makuuh, kylpyh, vaateh ja eteinen + parveke.
Huoneita
2
Lisätietoa vapautumisesta
Heti. On vapaa.
Keittiön varusteet
KEITTIÖ: Keittiössä on myös laminaatti lattiassa, seinät maalattu, välitilalaatat, Puustellin tummanruskeat ja vaaleat kaapistot. Komposiitti tiskiallas, induktioliesi, erillisuuni, huuva, jääkaappi pakastin ja integroitu astianpesukone. Keittiö on remontoitu 2010 ja koneistus on uusittu silloin. OLOHUONE: Lattiassa laminaatti, seinät tapetoidut ja sisustuslevykatto, jossa tähtitaivas valaistus. Käynti etelän suuntaiselle parvekkeelle ja sisältäkin saa ihailla Pyhäjärveä. MAKUUHUONE: Tilava makuuhuone, jossa samat materiaalit kuin olohuoneessa. PESU / WC-TILAT: Tilava kylpyhuone, jossa suihku, wc, käsienpesuallas peilikaappeineen ja pesukonekin mahtuu hyvin. Lattiassa laatat, seinät kaakeloidut, lattialämmitys. Myös kylpyhuone on remontoitu ja sen osalta vesiputket vaihdettu. SAUNA: Taloyhtiössä on siisti sauna. PARVEKE: Etelän suuntaiselta parvekkeelta upeat maisemat Pyhäjärvelle. PIHA: Autoille hyvä parkkipaikka alarinteessä järven puolella. Sieltä löytyy myös lämpötolppia. SÄILYTYSTILAT: Vaatehuone, jossa tavarat ja vaatteet ovat kauniisti kaapinovien takana. Avarassa eteisessä myös paljon komeroita ja halutessa makuuhuoneeseenkin niitä vielä mahtuu. Huoneistokohtaiset varastot ja kylmäkellari.
Tulevat remontit
Käyttövesiputkien uusiminen + huoneistokohtaiset vesimittarit 2026–2027. Ikkunat ja parvekeovet, huoltomaalaus 2027. Parvekkeiden peruskorjaus 2027. Julkisivujen peruskorjaus 2027. Foracon tekemään KPTS 2025. Palovaroittimet taloyhtiön vastuulle K, U, 2025.
Tehdyt remontit
2024 Märkätilojen ja kaikkien vesipisteiden riskiarviokartoitus ilman kosteusmittauksia 2022 Lämmön talteenoton korjaus 2022 LTO:n katolle menevät putket uusittu muoviputkiin 2022 Patteriverkoston perussäätö 2022 Kaikki patteriventtiilit vaihdettu 2022 Kiertovesipumppu vaihdettu suurempaan 2020 Parvekeovien tiivistäminen 2019 Patteritermostaattien uusimista 2018 Käyttövesiputkien uusimisen suunnittelu 2018 Uusi maalämpöpumppu 2018 Lattialämmitysten käytöstä poisottaminen 2015 Uuden kattohuovan asennus 2014 Jälkiasennushissien rakentaminen 2013 Rappukäytävien maalaus, lattiapinnoitteiden uusiminen 2012 Tuuletusparvekkeiden kunnostus 2011 Lämmitysverkoston perussäätö 2011 Maalämmön + LTO:n asentaminen 2010 Saunaosaston peruskorjaus 2010 Ikkunoiden, parvekeovien ja puu-ulko-ovien huoltomaalaus ulkopuolelta 2010 Ilmastointikanavien nuohous 2010 Uuden parkkipaikan teko 2008 Parvekkeiden päätyjen korjaus ja maalaus ulkopuolelta 2008 Kosteuskartoitus kaikkiin kylpyhuoneisiin 2007 Päädyn tiiliseinän ja savupiipun tiilivaurioiden korjaus 2007 Ulkorappusten uudelleenlaatoitus 2004 Lukkojen uusiminen 2003 Autotallien betonilattian korjaaminen 2002 TV-antenniverkon korjaus.
Asumistyyppi
Omistus
Palvelut
PALVELUT JA ETÄISYYDET: Tammelan palvelut aivan käden ulottuvilla, mutta kuitenkin ollaan moporingin ulkopuolella. Kunnan uimaranta on suoraa edessä, matkaa 300–400 metriä, kirkolle ja kaupoille 500 metriä. HARRASTUKSET: Pitää muistuttaa Tammelan hyvistä harrastusmahdollisuuksista, järvistä ja upeasta luonnosta. RANTA / JÄRVI: Pyhäjärveen noin 300–400 metriä ja melkein talon kohdalla on kunnan uimaranta.

Hinta

Velaton hinta
58 000 €
Myyntihinta
58 000 €
Neliöhinta
1 000 € / m²
Lunastuspykälä
Taloyhtiöllä ei lunastusoikeutta. Osakkailla ei lunastusoikeutta.

Asuinkustannukset

Hoitovastike
263,90 € / kk
Yhtiövastike
298,70 € / kk
Muut kustannukset
Lisätietoja maksuista: Vesimaksu 27,50 € / hlö/kk, sähkö oman kulutuksen mukaan, saunamaksu 13 €/kpl/kk tai 20 €/kpl/kk, autopaikkamaksu 10 €/kpl/kk.

Talon ja tontin tiedot

Uudiskohde
Ei
Taloyhtiön nimi
Asunto Oy Tammelan Myllytorppa
Rakennuksen tyyppi
Kerrostalo
Rakennusvuosi
1978
Kerroksia
3
Hissi
Ei
Energialuokka
C2018
Energiatodistus
Kyllä
Tontin koko
2 920 m²
Tontin omistus
Oma
Kiinteistönhoito
Huoltoyhtiö
Isännöinti
Lounaismaan Isännöinti Oy, 010 731 7907 / Jouni Hirvonen.
Kaavoitustiedot
Tammelan keskustassa, asemakaava-alueella.

Tilat ja materiaalit

Uusimmat artikkelit

Katso kaikki ajankohtaiset