Etusivu Myytävät kohteet 119 m² Puukkomäentie 9, 04600 Mäntsälä 3 mh, oh,rh,k,khh,s,kph, at.var – Oikotie 23861410

160 000 € 119 m²

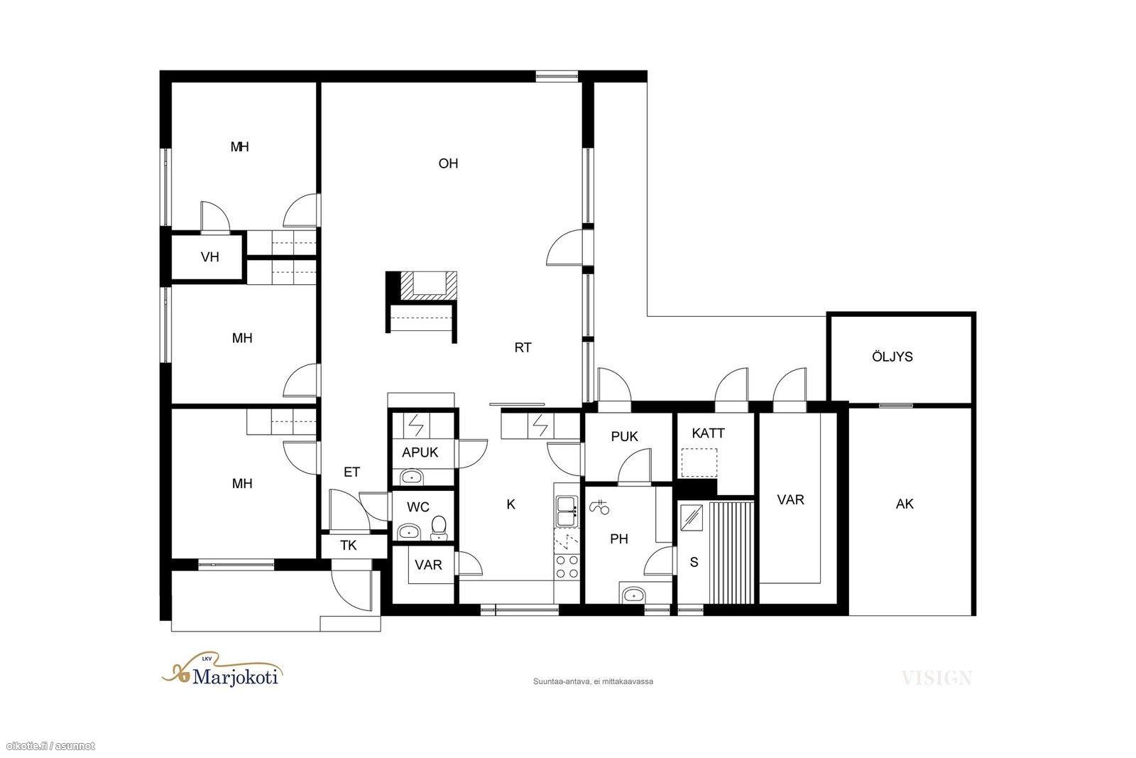
Puukkomäentie 9, Koskenranta, Mäntsälä, Mäntsälä 3 mh, oh,rh,k,khh,s,kph, at.var

Velaton hinta
160 000 €
Asuinpinta-ala
119 m²
Huoneita
4
Kerros
1
Rakennusvuosi
1979
Rakennuksen tyyppi
Omakotitalo
Kaupunginosa
Koskenranta, Mäntsälä
Kaupunki
Mäntsälä

Kompakti ja kodikas kolmen makuuhuoneen omakotitalo rauhallisella pientaloalueella. Kestävä tiiliverhoilu, tilava olohuone/ruokailutila ja toimiva pohja tekevät arjesta sujuvaa. Autotalli, lämmin varasto, vaatehuone ja oma kylmiö! Kotia on remontoitu 2020 luvulla.
Kulmatontti, suojaisa sisäpiha ja iso terassi, jossa nautit kesäpäivistä katseilta suojassa.
Täydellinen paketti perheelle! Ala- ja yläasteet noin 1,5 km päässä, samoin kuin harrastemahdollisuudet.

Perustiedot

Sijainti
Puukkomäentie 9, 04600 Mäntsälä
Kaupunginosa
Koskenranta, Mäntsälä
Kohdenumero
20509395
Kerros
1 / 1
Asuinpinta-ala
119 m²
Tontin pinta-ala
682 m²
Kokonaispinta-ala
141 m²
Huoneiston kokoonpano
3 mh, oh,rh,k,khh,s,kph, at.var
Huoneita
4
Kunto
Tyydyttävä
Lisätietoa vapautumisesta
2 kk kaupoista
Keittiön varusteet
Liesi: sähköliesi. Kylmäsäilytys: pakastin, kylmiö. Varustus: astianpesukone, liesituuletin / hormi.
Kylpyhuoneen varusteet
Varustus: lattialämmitys, wc-istuin, suihku, peili, kiinteät valaisimet. Erillisen WC:n kuvaus: erillinen wc + wc istuin kylpyhuoneessa. Varustus: lattialämmitys.
Säilytystilat
ulkovarasto
Tehdyt remontit
- peltikatto uusittu jossain vaiheessa - 2000 sauna, pesuhuone ja pukuhuone remontoitu - 2020 viemäreiden sukitus - 2021 käyttövesiputkisto uusittu - 2021 wc ja kodinhoitohuone uusittu kokonaan - 2021 keittiön katto, seinät ja lattia uusittu, kaapistot alkuperäiset - 2021 kylmiötä eristetty - 2022 pesu- ja pukuhuoneen laatoitus ja pesuhuoneen lattialämmitys - 2023-2024 ulkopinnat maalattu - 2025 kylmiön käyttöainetta lisätty - 2025 makuuhuoneiden seinät maalattu
Asunnossa sauna
Kyllä
Saunan lisätiedot
puukiuas
Asumistyyppi
Omistus
Palvelut
Palvelut: keskustan palvelut noin 2 km Koulut: Ehnroosin ja Myllymäen koulut noin 1,5 km Päiväkoti: Myllytontun päiväkoti 1,2 km
Kohde on
Kiinteistö
Kiinteistötunnus
505-407-58-1

Hinta

Velaton hinta
160 000 €
Myyntihinta
160 000 €
Neliöhinta
1 344,54 € / m²
Kiinnitykset
180 000 €

Asuinkustannukset

Muut kustannukset
Puhtaanapito: 8.5 EUR/kk. Jätevesi: 35 EUR/kk. Muut maksut: maksut yhden henkilön taloudessa
Kiinteistövero
605 €/v

Talon ja tontin tiedot

Uudiskohde
Ei
Tilan nimi
Salonkulma
Rakennuksen tyyppi
Omakotitalo
Rakennusvuosi
1979
Kerroksia
1
Hissi
Ei
Rakennusmateriaali
puurunko, tiiliverhous puu, tiili
Kattomateriaali
pelti
Kattotyyppi
harjakatto
Energiatodistus
Ei lain edellyttämää energiatodistusta.
Tontin koko
682 m²
Tontin omistus
Oma
Kaavatilanne
Asemakaava
Liikenneyhteydet
rautatieasema 3,2 km

Tilat ja materiaalit

Pintamateriaalit
Lattia: Keittiössä: parketti. Pesutiloissa: laatta. Erillisessä WC:ssä: laatta. Olohuoneessa: parketti. Makuuhuoneessa: parketti. Saunassa: laatta. Kodinhoitohuoneessa: laatta. Seinät: Keittiössä: maalattu. Pesutiloissa: kaakeli, puolipaneeli. Erillisessä WC:ssä: maalattu. Olohuoneessa: maalattu. Makuuhuoneessa: maalattu. Saunassa: puu. Kodinhoitohuoneessa: maalattu.

Uusimmat artikkelit

Katso kaikki ajankohtaiset